
Ses caractéristiques figurent dans un cahier des charges édité par
La Chambre Syndicale des Verreries Mécaniques de France
114, rue de la Boëtie
75008 Paris
Tél. : +33 (0) 142 65 60 02
Fax : +33 (0) 142 66 23 88
[email protected]
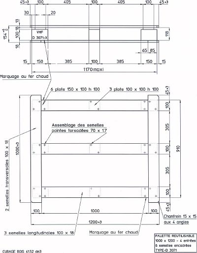
Les palettes VMF peuvent être réutilisées et réparées.
Elles peuvent faire l’objet de traitements phytosanitaires de type NIMP 15.
Produites à environ 2 millions d’exemplaires par an, la palette VMF représente moins de 3 % du marché français.
La totalité du parc est d’environ 5 millions de palettes.
Les figures ci-dessous, extraites du cahier des charges de la palette VMF, sont soumises au copyright de la CSVMF.
La fabrication de ce type de palettes est réservée aux entreprises
autorisées par la chambre syndicale des VMF. Chaque fabricant reçoit un numéro d'identification propre qu'il marque sur la palette à l'issue de la phase de fabrication. Les palettes VMF portent, en outre l'identification de l'acheteur initial (l'une des entreprises adhérentes de la CSVMF) et la date de fabrication.

